|
|
|
|
|
.
ตัวอย่างแบบพิมพ์เขียว - แบบบ้านสำเร็จรูป
.
|
| .
รายระเอียด ตัวอย่างของแบบพิมพ์เขียวมาตรฐาน ที่ท่านจะได้เมื่อใช้ซื้อแบบบ้านสำเร็จรูปของเรา
โดยแต่ละแบบจะมีรายละเอียดครบชุด
ทั้งแบบสถาปัตย์
แบบวิศวโครงสร้าง แบบระบบไฟฟ้า และแบบระบบสุขาภิบาล
พร้อมนำไปปลูกสร้าง หรือยื่นขอกู้ Bank ได้ทันที ทุกแบบใช้
Computer ในการเขียนแบบพิมพ์เขียวทั้งหมด
โดยแบบบ้านชั้นเดียว
แต่ละชุดจะมีแบบพิมพ์เขียว 30 - 50 แผ่น , แบบบ้าน 2
ชั้น แต่ละชุดจะมีแบบพิมพ์เขียว 40 - 60 แผ่น ส่วนแบบบ้าน
3 ชั้น แต่ละชุดจะมีแบบพิมพ์เขียว 50 - 60 แผ่น ( ขึ้นกับขนาดพื้นที่ใช้สอย
ของแบบบ้านแต่ละแบบ ) .. Click
แบบพิมพ์เขียวตัวอย่าง
เพื่อดูรายละเอียดแบบพิมพ์เขียว
.
|
|
ตัวอย่างแบบพิมพ์เขียวสถาปัตยกรรม |

|

|

|
|
แบบแปลนบ้านชั้น
1 ชั้น 2 |
รูปด้านอาคาร |
รุปตัดบ้าน
A, B, C |

|

|

|
|
แบบขยายรายละเอียดบันได |
แบบขยายรายละเอียดห้องน้ำ |
แบบขยายรายละเอียดประตู-หน้าต่าง
|
| |
|
|
|
แบบสถาปัตยกรรม เป็นแบบแสดงรายละเอียดของอาคารประกอบด้วย
- รายการสารบัญแบบ รายการวัสดุพื้น ผนัง ฝ้าเพดาน
- รายการประกอบแบบ แสดงรายละเอียดตั้งแต่การเตรียมงานก่อสร้าง
การเตรียมพื้นที่ งานฐานราก งานโครงสร้าง งานหลังคา ประตูหน้าต่าง
งานสี งานฝ้าเพดานและรายละเอียดอื่น ๆ
- แบบผังบริเวณ แสดงการระบายน้ำออกนอกอาคาร
- แบบแปลนบ้านทุกชั้น แสดงรายละเอียดขนาดกว้างยาวของแต่ละห้องอย่างละเอียด
พร้อมระบุรายการวัสดุที่ใช้
- แบบรูปด้านตัวบ้านทุกด้าน
- แบบรูปตัดแสดงรายละเอียดความสูงของตัวบ้าน รายละเอียดวัสดุก่อสร้าง
รายละเอียดโครงหลังคา
- แบบขยายรายละเอียดบันได ระบุวัสดุที่ใช้ทำพื้น
ขนาดลูกตั้ง ลูกนอน รายละเอียดราวบันได
- แบบขยายรายละเอียดห้องน้ำทุกห้อง พร้อมระบุรายการวัสดุพื้น
ผนัง รายการสุขภัณฑ์
และอุปกรณ์ในห้องน้ำ
- แบบขยายรายละเอียดประตู หน้าต่าง พร้อมระบุชนิด ขนาด
วงกบ อุปกรณ์บานพับ มือจับ ลูกบิด
กลอน
- แบบขยายรายละเอียดอื่นๆ เช่น รายละเอียดส่วนตกแต่ง เช่น
คิ้ว บัว กระถางต้นไม้
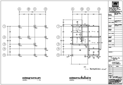
ตัวอย่างแบบพิมพ์เขียววิศวโครงสร้าง |

|

|
| แบบแปลนโครงสร้าง |
แบบขยายรายละเอียดโครงสร้างคาน |

|

|
| แบบขยายรายละเอียดโครงสร้างเสา
บันได พื้น |
แบบขยายรายละเอียดโครงสร้างเสาเข็ม
ฐานราก |
|
แบบวิศวโครงสร้าง เป็นแบบแสดงรายละเอียดงานโครงสร้าง
ซึ่งออกแบบโดยวิศวกร ที่มีประสบการณ์มากกว่า 10
ปี ประกอบด้วย
- แบบแปลนตำแหน่ง ขนาดเสาเข็ม พร้อมระยะอย่างละเอียด
- แบบแปลนฐานราก ระบุตำแหน่งพร้อมระยะอย่างละเอียด
- แบบแปลนคาน พื้นทุกชั้น ระบุชนิดของพื้นที่ใช้
เช่น พื้นคอนกรีตหรือพื้นสำเร็จรูป
- แบบโครงหลังคา แสดงรายละเอียดวัสดุหลังคา วัสดุโครงหลังคา
ขนาดจันทัน แป ชนิดของกระเบื้อง
- แบบขยายฐานราก เสาเข็ม แสดงรายละเอียดการเสริมเหล็ก
ชนิด ขนาดของเหล็ก
และรายละเอียดชนิด ขนาดเสาเข็มที่ใช้
- แบบขยายรายละเอียดเสาของบ้านทุกชั้น พร้อมระบุขนาด
ชนิดของเหล็ก การรับน้ำหนัก
กำลังอัดของคอนกรีต
- แบบขยายคานคอนกรีตเสริมเหล็ก พร้อมระบุชนิดและขนาดเหล็กที่ใช้อย่างละเอียด
- แบบขยายพื้นคอนกรีตเสริมเหล็ก พร้อมระบุชนิดและขนาดเหล็กที่ใช้อย่างละเอียด
- แบบขยายการเสริมเหล็กบันได พร้อมระบุชนิดและขนาดเหล็กที่ใช้อย่างละเอียด
- แบบขยายส่วนโครงสร้างอื่นๆ เช่น เอ็นทับหลัง ระเบียง
ม้านั่ง เป็นต้น
- รายการคำนวณโครงสร้างทางวิศวกรรม อย่างละเอียด |
|
|
|
|
|
|